接着剤の製造工程
特徴
急激な温度上昇と低下
高い伝熱効率で生産効率アップ
均一な混合で操作性が向上
こびりつきにくい素材なのでお手入れも簡単
同様の伝熱面積を持つ従来の反応器と比較して 40% 以上のエネルギーを節約
加熱方法
スチーム
熱伝導オイル
主要コンポーネントの説明
リアクター
反応器は反応条件に応じて設計された総合的な反応容器として機能します。高度な自動化により、供給、反応、排出が容易になります。反応プロセス中は、温度、圧力、機械制御 (撹拌、送風など)、反応物/生成物の濃度などの主要なパラメーターが厳密に制御されます。その構造は一般的に釜本体、駆動部、撹拌部、加熱部、冷却部、シール部から構成されます。
電子秤
ゴム原料の計量には電子スケールが一般的に使用されており、人為的な誤差を減らし、正確な原料比率を確保します。ホルムアルデヒド、尿素、フェノールなどを正確に測定し、操作エラーを最小限に抑え、製品と生産の安定性を確保します。
コンデンサー
凝縮器は、反応溶液中の蒸発した蒸気と揮発した反応物質を凝縮して反応釜に戻すことを可能にし、一貫した原料比率を維持し、樹脂の収率を高め、樹脂の品質を確保し、環境汚染を軽減します。サイズが小さく、伝熱面積が大きく、分解が容易な管状凝縮器が一般的に使用されます。脱水接着剤の製造では、熱交換効率と生産性が低下する可能性がある接着剤の付着を防ぐために、蒸気上昇パイプラインにミストエリミネーターを設置する必要があります。
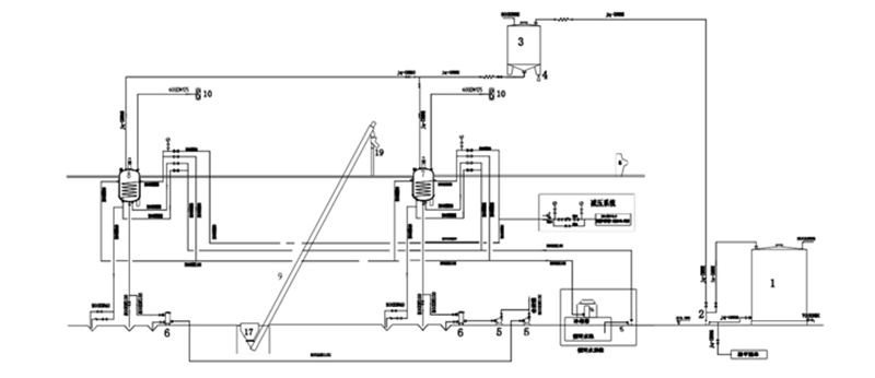
お客様のプラントの例
私たちがあなたのビジネスをどのようにサポートできるか
完全な含浸ライン
単体ユニット(アンワインダー、含浸ステーション、乾燥機、コーティング機、クーラー、ウェブアライナー、カッター、コンベア、リフティングテーブル)
樹脂製造装置および樹脂混合システム
熱回収システムと空気処理
スペアパーツ
実験用設備(テストプレス機、手動含浸装置、試験装置など)
技術移転(樹脂配合、含浸技術、工場計画)





